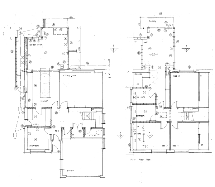
The Hazels

A contemporary cedar clad two storey rear extension to an existing 1970s house to create opening plan living kitchen leading out through sliding glazed screens in to the garden. Creation of a new ensuite master bedroom with dressing room and balcony overlooking the local cricket ground.