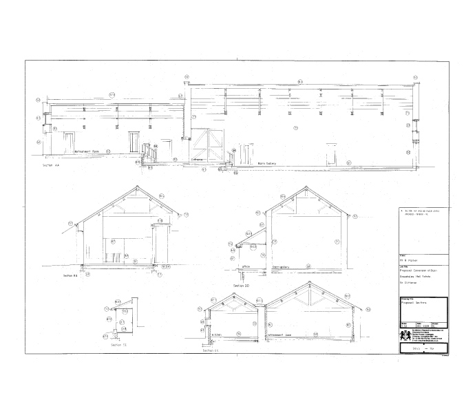
Tithe Barn

Conversion of a Grade II Listed Barn to a new multi-purpose venue which hosts weddings, recitals, farmers markets and other events, with a new kitchen extension and adaption of an existing outbuilding to new toilets with a new oak framed and glazed link to the main barn.